U gebruikt een verouderde internetbrowser.
We raden u aan om de meest recente internetbrowser te installeren voor de beste weergave van deze website.
Een internetbrowser die up to date is, staat ook garant voor veilig surfen.

Dit pand is verkocht

Indien u geïnteresseerd bent in gelijkaardige panden, schrijf u dan vrijblijvend in en blijf op de hoogte van ons meest recente aanbod.

Schrijf u in

9041 Oostakker

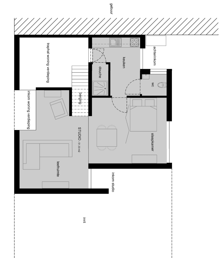
Omschrijving

Architectenwoning met extra woongedeelte!

De gevel van deze recente woning verbergt een mooi architecturaal geheel. Via de stijlvolle inkomhal en de zwarte trap kom je in de lichtrijke en volledig open leefruimte. Aan de straatzijde bevindt zich de open keuken en eetplaats, en achteraan is de living voorzien die uitkijkt op de open mezzanine en het buitenterras. Een strakke open trap en loopbrug brengen je naar een gezellige leeshoek, de drie slaapkamers en de badkamer (met ligbad en tweede toilet). De master bedroom kijkt ook uit op het terras, en de twee andere slaapkamers beschikken eveneens over een mezzanine. Bergruimte is er in de grote zolder en in de berging net naast de keuken. Op het gelijkvloers is een polyvalente (bureel)ruimte aanwezig, met een eigen toilet en douche. Er is dus zeker een mogelijkheid om het gelijkvloers in te richten als zorgwoning, er is een foto die kan aantonen hoe het ingericht kan worden. De woning ligt dichtbij de grote invalswegen van Gent, zonder er echter hinder van te ondervinden. Het gezellige dorp van Oostakker met al zijn faciliteiten ligt letterlijk om de hoek. De doorgang naar de achterliggende magazijnen (niet in de verkoop inbegrepen) biedt ook eigen parkeergelegenheid. Dit is een instelprijs. Inschrijvingen via mail naar tommy@immo-home.be , geen telefonische inschrijvingen! Volg ons op Fb en insta. Voor meer info: www.immo-home.be
GRATIS schatting
GRATIS financieel advies


Niet gevonden wat u zocht?

Schrijf u dan vrijblijvend in en blijf op de hoogte van ons meest recente aanbod.

Schrijf u in
Terug naar boven
Schrijf u in
Wij houden u op de hoogte van ons aanbod in België - Spanje - Tenerife
Sluit menu Immo-Home