U gebruikt een verouderde internetbrowser.
We raden u aan om de meest recente internetbrowser te installeren voor de beste weergave van deze website.
Een internetbrowser die up to date is, staat ook garant voor veilig surfen.

Moderne nieuwbouwwoning nabij de zee in Javea - 03738 Jávea Xàbia
Vraagprijs: € 1.450.000

Omschrijving

Moderne nieuwbouwwoning nabij de zee in Javea

Exclusief mediterraan wonen in Javea
Ontdek deze prachtige moderne villa in een van de meest gewilde en rustige wijken van Javea, op slechts 800 meter van de zee. Deze woning ligt verscholen tussen pijnbomen en dicht bij de beroemde Cala de la Barraca en Cala del Portixol, en biedt een bevoorrechte levensstijl, omgeven door natuur en de schoonheid van de kust. Javea, gelegen aan de Costa Blanca tussen Alicante en Valencia, staat bekend om zijn kristalheldere water, charmante oude binnenstad en het milde klimaat het hele jaar door, waardoor het een van de meest gewilde bestemmingen in het Middellandse Zeegebied is.

Elegant ontwerp en lichte open ruimtes
Deze villa is ontworpen met het oog op comfort en stijl en heeft een moderne architectuur met zachte lijnen, grote ramen en een vloeiende integratie tussen binnen en buiten. Natuurlijk licht baadt elke hoek en creëert een warme en uitnodigende sfeer die ideaal is om in te wonen en gasten te ontvangen.

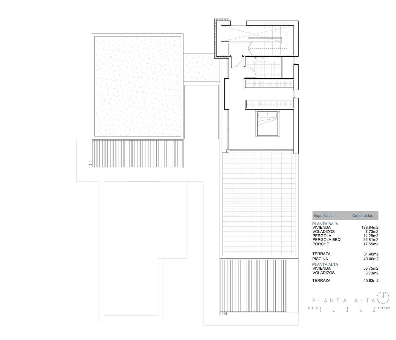
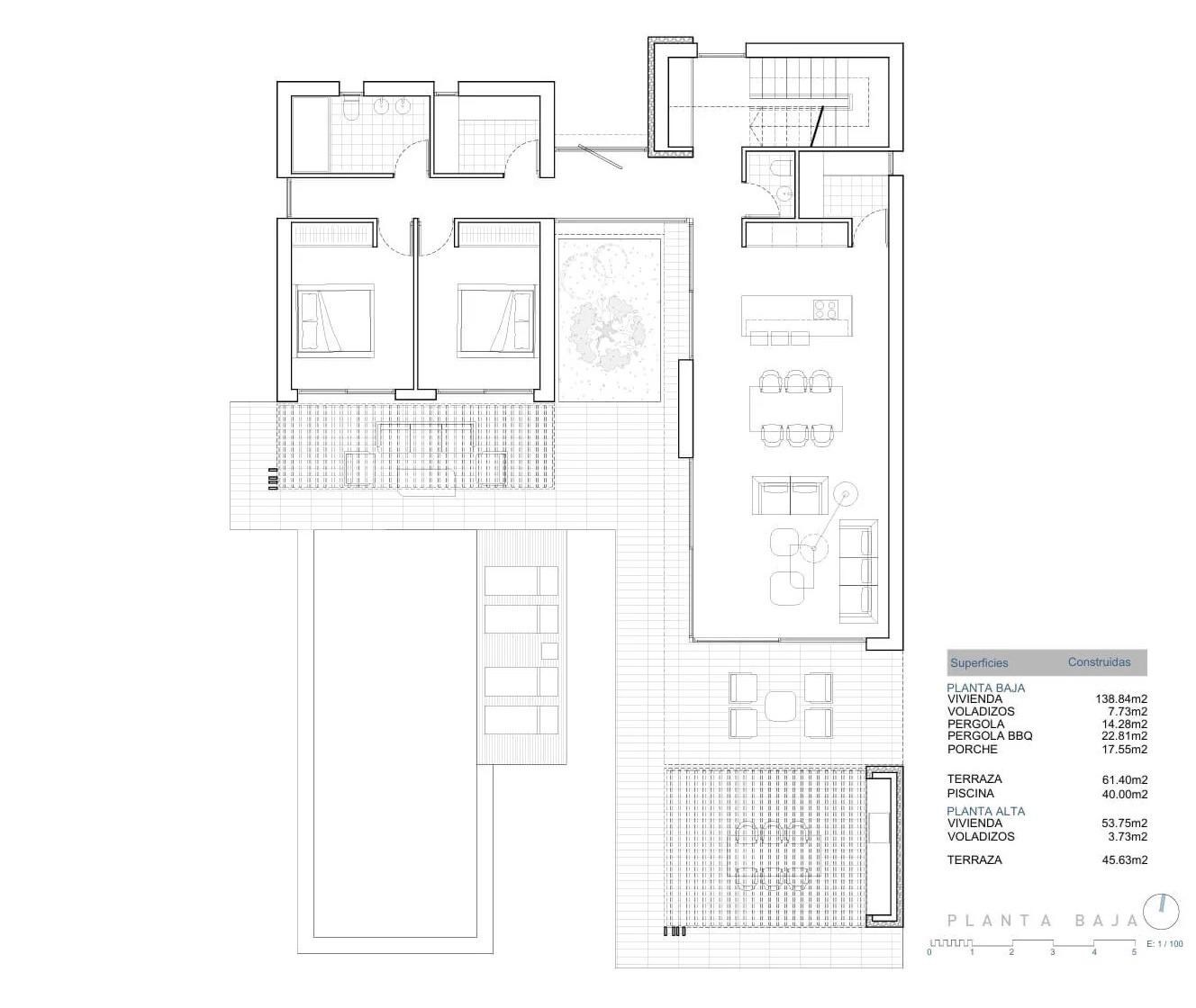
De villa is verdeeld over twee verdiepingen en omvat
Open woon- en eetkamer met naadloze toegang tot terrassen en zwembad
Volledig ingerichte open keuken
3 slaapkamers en 2 badkamers plus 1 gastentoilet
Was- en bijkeuken
Privé-tuin, terrassen en zwembad met zomerkeuken

Privé master suite en buitenleven
De begane grond omvat twee slaapkamers, een badkamer en ruime sociale ruimtes. Op de bovenverdieping biedt de hoofdslaapkamer een privétoevluchtsoord met een eigen badkamer, een royale inloopkast en een terras van 45 m2, perfect om te genieten van het uitzicht op de zonsopgang en de mediterrane bries. De buitenruimte is ontworpen om te ontspannen, met een privézwembad, zonneterrassen en een weelderige omgeving die rust en privacy garanderen.

Toplocatie aan de Costa Blanca Noord
Javea biedt een uitzonderlijke levensstijl met prachtige stranden, wandelroutes, jachthavens, golfbanen en gastronomische restaurants. De stad ligt op 92 km van Alicante en 105 km van Valencia.

Belangrijkste afstanden
Strand en Cala del Portixol: 0,8 km
Haven en jachthaven van Javea: 8 km
Golfclub van Javea: 10 km
Luchthaven Alicante: 100 km
Luchthaven Valencia: 125 km

Uw mediterrane thuis wacht op u
Of u nu op zoek bent naar een permanente woning, een luxe vakantieverblijf of een eersteklas investering, deze villa biedt privacy, comfort en een uitzonderlijke ligging aan de kust. Neem vandaag nog contact met ons op voor meer informatie of om een bezichtiging te regelen van deze exclusieve moderne woning in Javea.


Kenmerken

Algemeen

Adres:Jávea Xàbia
Referentie:N9327
Vraagprijs:€ 1.450.000
Type:Villa
Perceeloppervlakte:1.000 m²
Bebouwde opp.:210 m²
Bewoonbare opp.:160 m²

Indeling

Slaapkamers:3 (0 m², 0 m², 0 m²)
Badkamers:2
Terras:105 m²
Tuin:Ja

Comfort

Airco:Neen - Pre-Installed
Zwembad:Ja

Neem vrijblijvend contact op

Wenst u meer informatie of wilt u een bezoekmoment inplannen? Contacteer ons vrijblijvend voor meer informatie. 
Wanneer wij uw aanvraag hebben ontvangen zullen wij verder contact met u opnemen. 


U moet akkoord gaan met het privacybeleid van deze website
* Verplicht in te vullen

Niet gevonden wat u zocht?

Schrijf u dan vrijblijvend in en blijf op de hoogte van ons meest recente aanbod.

Schrijf u in
Terug naar boven
Schrijf u in
Wij houden u op de hoogte van ons aanbod in België - Spanje - Tenerife
Sluit menu Immo-Home