U gebruikt een verouderde internetbrowser.
We raden u aan om de meest recente internetbrowser te installeren voor de beste weergave van deze website.
Een internetbrowser die up to date is, staat ook garant voor veilig surfen.

Exclusieve villa's in Hacienda del Álamo Golf Resort, Costa Cálida - 30320 Fuente Álamo
Vraagprijs: € 335.300

Omschrijving

Exclusieve villa's in Hacienda del Álamo Golf Resort, Costa Cálida

Moderne villa's in een van de beste golfresorts van Spanje

Ontdek een unieke kans om een nieuwbouwwoning te kopen tegen een uitzonderlijke prijs in het toeristische complex Hacienda del Álamo Golf Resort, gelegen tussen de historische steden Cartagena en Murcia, in het hart van de Costa Cálida. Deze moderne villa's zijn ontworpen om comfort, privacy en elegantie te bieden en liggen in een uitzonderlijke omgeving die gewijd is aan golf en ontspanning.

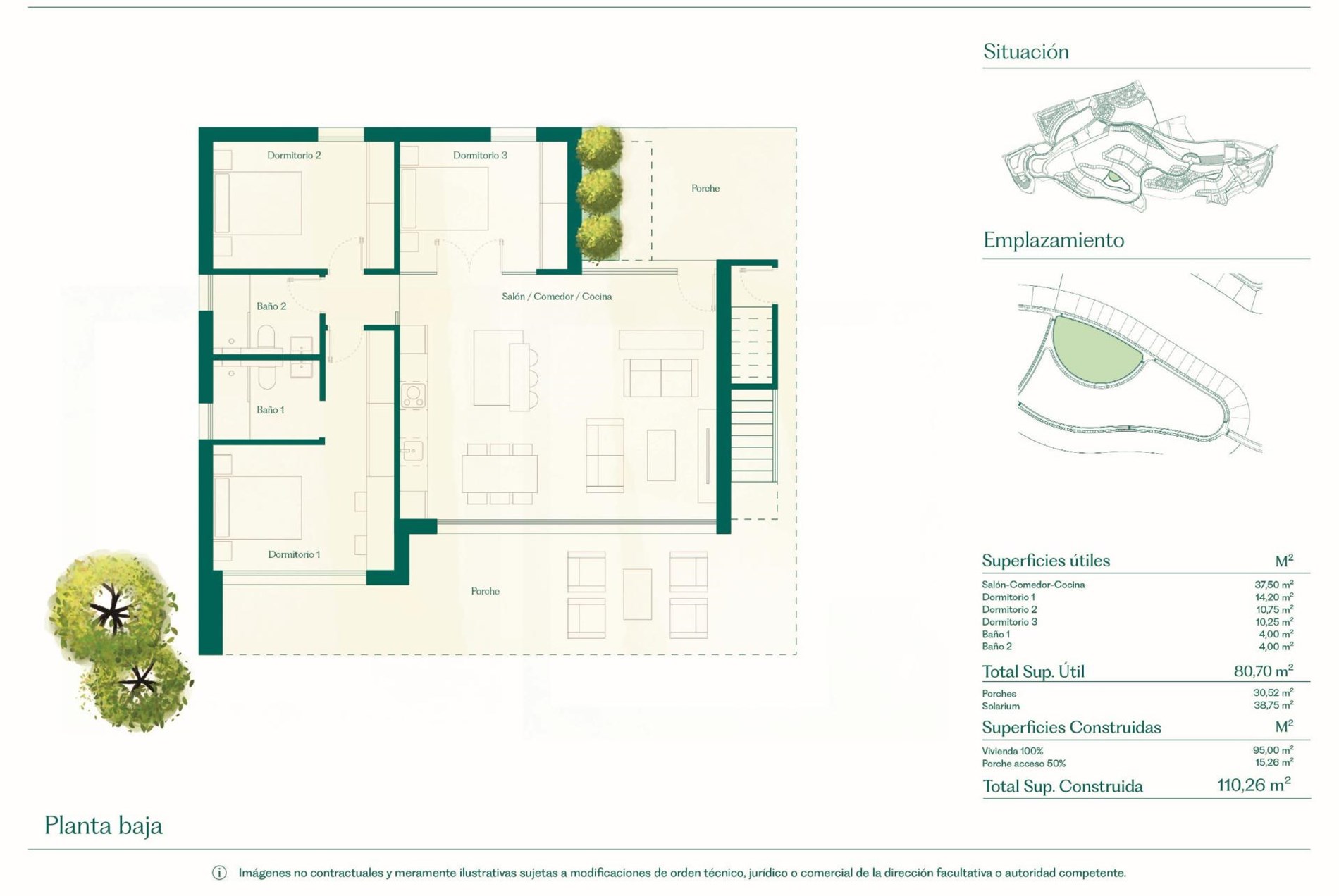
Elke woning heeft een ruime indeling met 3 slaapkamers en 2 badkamers op één verdieping. Privé dakterras. Met percelen vanaf 378 vierkante meter en een bebouwde oppervlakte van 111 vierkante meter bieden deze woningen veel ruimte voor binnen en buiten.

Hoogwaardige afwerking en voorzieningen

Deze villa's zijn voorzien van alle moderne gemakken voor maximaal comfort en stijl, waaronder:

Tuin met druppelirrigatiesysteem
Volledig ingerichte keuken met kasten en inbouwapparatuur
Voorbereiding voor airconditioning
Badkamers met meubels, spiegels en douchewanden
Aluminium ramen met thermische onderbreking en dubbele beglazing
Toegang tot een groot gemeenschappelijk zwembad met natuurgras en een kinderspeelplaats
Mogelijkheid om een privézwembad toe te voegen tegen een meerprijs

Luxe leven in Hacienda del Álamo Golf Resort

Hacienda del Álamo staat bekend als een van de beste golfresorts van Spanje, omdat het zijn bewoners een ontspannen, sportieve en comfortabele levensstijl biedt.

18-holes golfbaan en golfacademie
Sportfaciliteiten, waaronder tennis, paddle tennis, fitnessruimte en fitnesslessen
Hoofdclubhuis met panoramisch uitzicht, een restaurant met mediterrane keuken en zonnige terrassen
4-sterrenhotel en spa voor ontspanning en welzijn
Ruimte voor het hele gezin, met kinderspeelplaatsen, zwembaden en fietspaden.
Traditioneel Spaans dorp met winkels, cafés en nieuwe restaurants die binnenkort hun deuren openen.

Strategische ligging met uitstekende verbindingen

Luchthaven Corvera (Murcia): 18 km (ongeveer 15 minuten)
Cartagena: 36 km
Centrum van Murcia: 40 km
Stranden van de Mar Menor: 28 km
Winkelcentra (Dos Mares, Espacio Mediterráneo): minder dan 30 km

Uw droomhuis aan de golfbaan wacht op u

Of u nu op zoek bent naar een permanente woning, een vakantieverblijf of een slimme investering aan de Costa Cálida, deze villa's op het golfresort Hacienda del Álamo zijn de perfecte keuze. Neem vandaag nog contact met ons op voor meer informatie of om een persoonlijke bezichtiging te plannen.


Kenmerken

Algemeen

Adres:Fuente Álamo
Referentie:N8988
Vraagprijs:€ 335.300
Type:Villa
Perceeloppervlakte:395 m²
Bebouwde opp.:111 m²
Bewoonbare opp.:95 m²

Indeling

Slaapkamers:3 (0 m², 0 m², 0 m²)
Badkamers:2
Terras:68 m²
Tuin:Ja

Comfort

Airco:Neen - Pre-Installed
Zwembad:Ja

Neem vrijblijvend contact op

Wenst u meer informatie of wilt u een bezoekmoment inplannen? Contacteer ons vrijblijvend voor meer informatie. 
Wanneer wij uw aanvraag hebben ontvangen zullen wij verder contact met u opnemen. 


U moet akkoord gaan met het privacybeleid van deze website
* Verplicht in te vullen

Niet gevonden wat u zocht?

Schrijf u dan vrijblijvend in en blijf op de hoogte van ons meest recente aanbod.

Schrijf u in
Terug naar boven
Schrijf u in
Wij houden u op de hoogte van ons aanbod in België - Spanje - Tenerife
Sluit menu Immo-Home