U gebruikt een verouderde internetbrowser.
We raden u aan om de meest recente internetbrowser te installeren voor de beste weergave van deze website.
Een internetbrowser die up to date is, staat ook garant voor veilig surfen.

Luxe nieuwbouwwoningen in Finestrat, nabij Benidorm - 03509 Finestrat
Vraagprijs: € 849.000

Omschrijving

Luxe nieuwbouwwoningen in Finestrat, nabij Benidorm

Exclusieve collectie duurzame vrijstaande villa's
Dit prestigieuze project bestaat uit 36 vrijstaande villa's in de gewilde urbanisatie Bahia Golf in Finestrat, op slechts 3,5 km van de Middellandse Zeekust. Deze moderne woningen zijn ontworpen om luxe, comfort en duurzaamheid te combineren en bieden een uitzonderlijke levensstijl aan de Costa Blanca, omgeven door natuur en toch dicht bij alle voorzieningen.

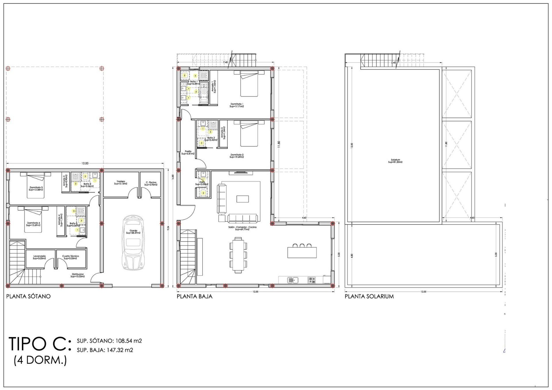
Elke villa heeft 3 of 4 ruime slaapkamers, een eigen aangelegde tuin en een privézwembad. Sommige woningen hebben een prachtig uitzicht op zee, terwijl alle woningen zijn gelegen op royale percelen van meer dan 500 m2 met een bebouwde oppervlakte vanaf 222 m2.

Flexibele indelingen met kelder en solarium op het dak
Kopers kunnen kiezen uit vier verschillende indelingen, die allemaal zorgvuldig zijn ontworpen om de ruimte en het natuurlijke licht te maximaliseren. Elke villa heeft een kelder met privéparkeerplaats, berging, wasruimte en twee slaapkamers met en-suite badkamers die in verbinding staan met een Engelse patio voor natuurlijk licht en ventilatie.

De begane grond beschikt over één of twee extra slaapkamers met en-suite badkamer, een gastentoilet en een open keuken die in verbinding staat met de woon- en eetkamer, met directe toegang tot het terras en het zwembad. Elk pand heeft een solarium op het dak, met panoramisch uitzicht op de bergen of de zee en de mogelijkheid om een jacuzzi te installeren.

Hoogwaardige afwerking en BREEAM-energie-efficiëntie
Deze villa's zijn gebouwd volgens de BREEAM-certificeringsnormen, wat een uitstekende energieprestatie en milieuvriendelijkheid garandeert. Tot de hoogwaardige specificaties behoren:

Aluminium ramen met dubbele beglazing, thermische onderbreking en elektrische rolluiken
Volledig geïnstalleerde airconditioning met luchtkanalen
Gemotoriseerde toegangspoort voor voertuigen
Privézwembad en aangelegde tuin
Moderne keuken van PORCELANOSA, uitgerust met apparatuur
Designbadkamers met meubilair, spiegels en inloopdouches
Porseleinen tegels van PORCELANOSA

Toplocatie dicht bij stranden, golfbanen en winkels
Finestrat is een charmant stadje tussen de bergen en de zee, dat rust biedt en toch op slechts enkele minuten van het bruisende Benidorm ligt. De omgeving combineert natuurschoon met een uitstekende infrastructuur, internationale scholen, restaurants en winkelcentra.

Afstanden tot belangrijke bezienswaardigheden
Stranden van Benidorm 3,5 km
Winkelcentrum La Marina 1 km
Puig Campana Golf 3 km
Oude binnenstad van Benidorm 4 km
Luchthaven Alicante 55 km
Toegang tot snelweg A7 2 km

Leef de mediterrane droom in Finestrat
Deze villa's bieden de perfecte balans tussen luxe, natuur en connectiviteit aan de Costa Blanca. Neem vandaag nog contact met ons op voor meer informatie of om een privébezichtiging te regelen van deze uitzonderlijke nieuwbouwwoningen in Finestrat.


Kenmerken

Algemeen

Adres:Finestrat
Referentie:N9579
Vraagprijs:€ 849.000
Type:Villa
Perceeloppervlakte:501 m²
Bebouwde opp.:255 m²
Bewoonbare opp.:147 m²

Indeling

Slaapkamers:4 (0 m², 0 m², 0 m², 0 m²)
Badkamers:4
Kelder:Ja
Terras:81 m²
Tuin:Ja

Comfort

Zwembad:Ja

Neem vrijblijvend contact op

Wenst u meer informatie of wilt u een bezoekmoment inplannen? Contacteer ons vrijblijvend voor meer informatie. 
Wanneer wij uw aanvraag hebben ontvangen zullen wij verder contact met u opnemen. 


U moet akkoord gaan met het privacybeleid van deze website
* Verplicht in te vullen

Niet gevonden wat u zocht?

Schrijf u dan vrijblijvend in en blijf op de hoogte van ons meest recente aanbod.

Schrijf u in
Terug naar boven
Schrijf u in
Wij houden u op de hoogte van ons aanbod in België - Tenerife
Sluit menu Immo-Home