U gebruikt een verouderde internetbrowser.
We raden u aan om de meest recente internetbrowser te installeren voor de beste weergave van deze website.
Een internetbrowser die up to date is, staat ook garant voor veilig surfen.

NIEUWBOUW VILLA'S IN FINESTRAT - 3509 Finestrat
Vraagprijs: € 760.000

Omschrijving

NIEUWBOUW VILLA'S IN FINESTRAT

Nieuwbouw Moderne villa's in Finestrat.

Villa's met 3 slaapkamers en 3 badkamers, open keuken met zithoek, terras met prachtig uitzicht over Benidorm, privétuin met zwembad en parkeerplaats.

Het is ontworpen als een volledig beloopbare ruimte met binnen- en buitenpaden die onafhankelijke toegang bieden tot elke verdieping. Dit ontwerp biedt verschillende perspectieven op het architectonische complex en de omgeving, met de zee en Sierra Cortina als schilderachtige achtergrond.

De hoofdingang van de villa ligt aan de onderkant van het perceel, met voldoende parkeergelegenheid voor twee voertuigen. Een waterpartij met loungestoelen leidt je naar de begane grond, die wordt gekenmerkt door brede muren versierd met metselwerk. Vanuit de woonkamer loopt een terras naadloos door, mogelijk gemaakt door een groot openslaand raam. Houten luiken op gemetselde muren zorgen voor een gedeeltelijk overdekte buitenruimte voor extra comfort.

Het zwembad, met aquamarijne tinten en een bekleding van gresiet, grenst aan een bestrating van antislip porseleinen tegels met een houtachtig uiterlijk.
Deze ruimte bevat ook een barbecueplaats die kan worden aangepast aan de behoeften van de gebruiker, met toegang vanaf een verharde zone door het natuurlijke terrein.

Finestrat ligt in de regio Marina Baixa aan de Costa Blanca, vlakbij het naburige Benidorm en op ongeveer 40 kilometer van de stad Alicante en de internationale luchthaven.

Het dorp ligt op de berghelling van Puig Campana en biedt prachtig uitzicht op de bergen, de kust en de Middellandse Zee.

Benidorm ligt op slechts vijf minuten rijden van de woningen en biedt alle voorzieningen die je nodig hebt, zoals winkels, bars, restaurants, supermarkten, banken, apotheken en verschillende internationale privéscholen.


Kenmerken

Algemeen

Adres:Finestrat
Referentie:N7628
Vraagprijs:€ 760.000
Type:Villa
Perceeloppervlakte:564 m²
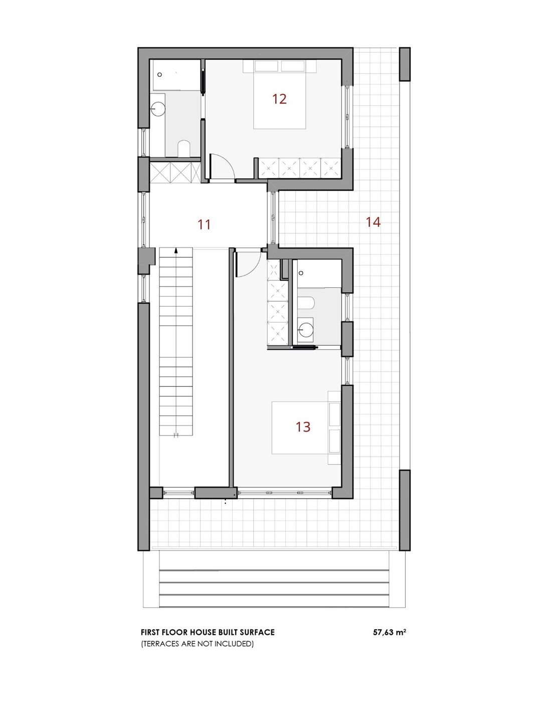
Bebouwde opp.:198 m²
Bewoonbare opp.:138 m²

Indeling

Slaapkamers:3 (0 m², 0 m², 0 m²)
Badkamers:3
Terras:60 m²
Tuin:Ja

Comfort

Airco:Neen - Pre-Installed
Zwembad:Ja

Neem vrijblijvend contact op

Wenst u meer informatie of wilt u een bezoekmoment inplannen? Contacteer ons vrijblijvend voor meer informatie. 
Wanneer wij uw aanvraag hebben ontvangen zullen wij verder contact met u opnemen. 


U moet akkoord gaan met het privacybeleid van deze website
* Verplicht in te vullen

Niet gevonden wat u zocht?

Schrijf u dan vrijblijvend in en blijf op de hoogte van ons meest recente aanbod.

Schrijf u in
Terug naar boven
Schrijf u in
Wij houden u op de hoogte van ons aanbod in België - Spanje - Tenerife
Sluit menu Immo-Home