U gebruikt een verouderde internetbrowser.
We raden u aan om de meest recente internetbrowser te installeren voor de beste weergave van deze website.
Een internetbrowser die up to date is, staat ook garant voor veilig surfen.

Nieuwbouwwoningen gelegen in de gemeente Aspe. - 03680 Aspe Pedanias
Vraagprijs: € 581.000

Omschrijving

Nieuwbouwwoningen gelegen in de gemeente Aspe.

Nieuwbouwwoningen met verschillende modellen naar keuze met 2, 3 of 4 slaapkamers, met één of twee verdiepingen en gebouwd met platen of met een structuur: afhankelijk van het model en het gekozen perceel wordt de exacte prijs berekend.

Alle villa's worden gebouwd op rustieke percelen van meer dan 10.000 m2, waarvan ongeveer 2.500 m2 omheind zal worden.

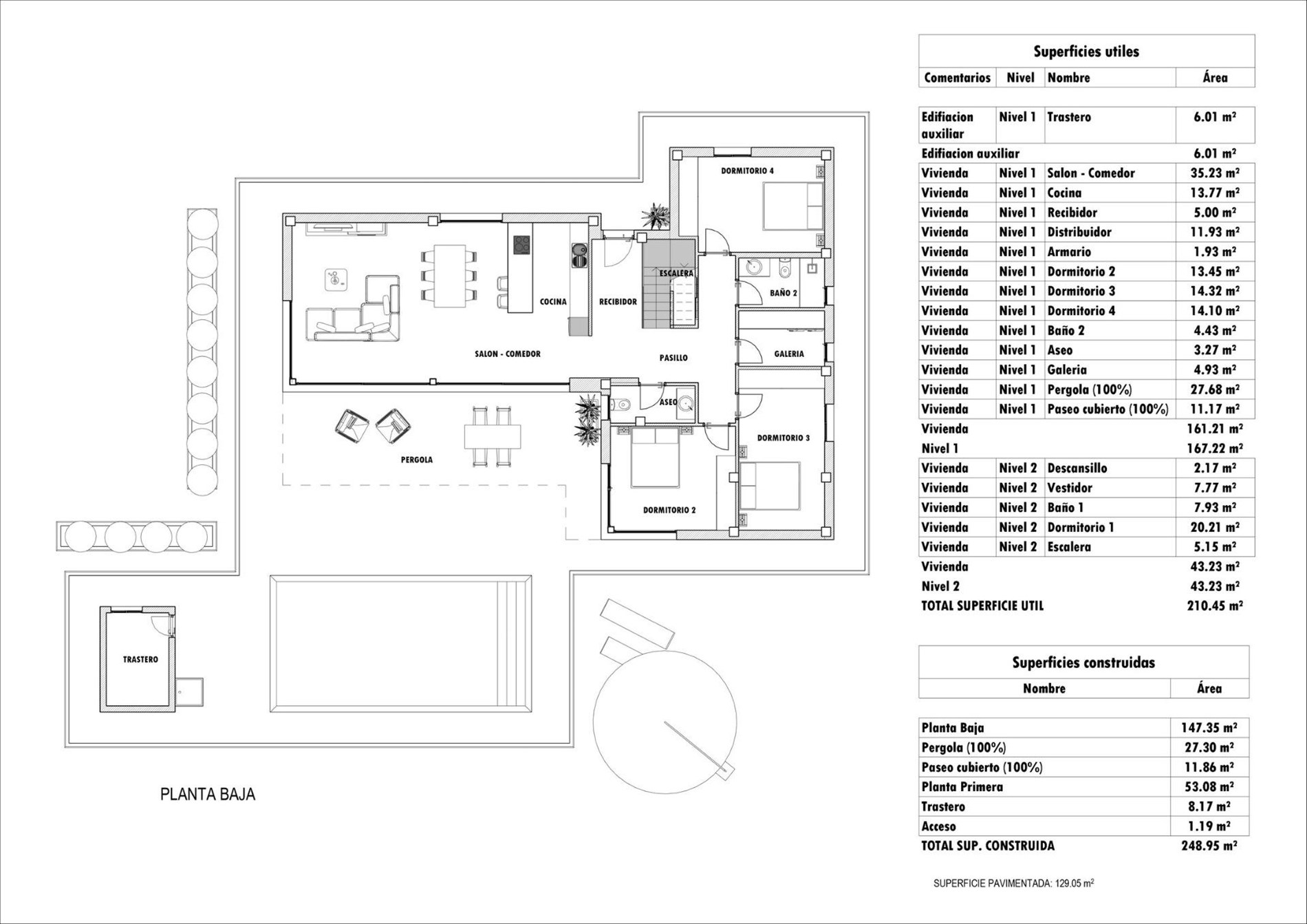
De villa's beschikken over een open keuken met woonkamer, inbouwkasten, privézwembad, veranda, berging en buitenparkeerplaats.

Er zijn verschillende percelen beschikbaar. Voor de prijsberekening is uitgegaan van een perceel met een prijs van 77.500 euro (als u een ander perceel kiest, betaalt u het verschil).

Het project wordt in eigen beheer uitgevoerd en wordt binnen ongeveer 12 maanden na verlening van de vergunning opgeleverd.

Als u op zoek bent naar een rustige omgeving, dicht bij typisch Spaanse dorpjes, ver weg van de toeristische drukte, omgeven door bergen, met een zeer groot perceel en op ongeveer 30 minuten van de zee, dan is dit uw huis.

Aspe is een typisch Spaans dorp met alle voorzieningen voor het dagelijks leven, omgeven door bergen en met verschillende natuurgebieden in de omgeving waar u kunt wandelen of mountainbiken.

Gelegen op 25 km van het strand, op 9 km van Elche en op ongeveer 20 km van de luchthaven van Alicante.


Kenmerken

Algemeen

Adres:Aspe Pedanias
Referentie:N8932
Vraagprijs:€ 581.000
Type:Villa
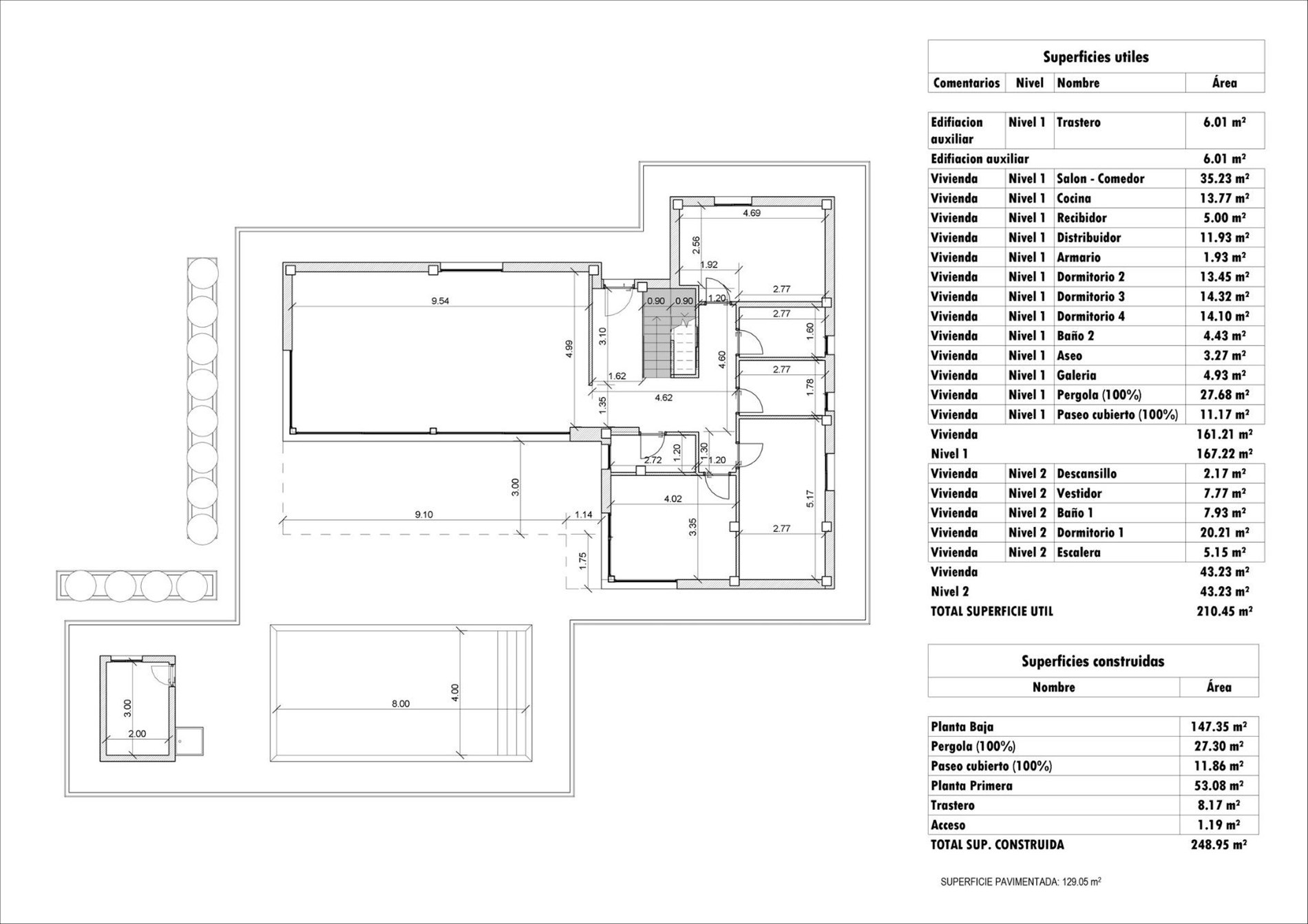
Perceeloppervlakte:13.172 m²
Bebouwde opp.:248 m²
Bewoonbare opp.:210 m²

Indeling

Slaapkamers:4 (0 m², 0 m², 0 m², 0 m²)
Badkamers:3
Terras:38 m²
Tuin:Ja

Comfort

Airco:Neen - Pre-Installed
Zwembad:Ja

Neem vrijblijvend contact op

Wenst u meer informatie of wilt u een bezoekmoment inplannen? Contacteer ons vrijblijvend voor meer informatie. 
Wanneer wij uw aanvraag hebben ontvangen zullen wij verder contact met u opnemen. 


U moet akkoord gaan met het privacybeleid van deze website
* Verplicht in te vullen

Niet gevonden wat u zocht?

Schrijf u dan vrijblijvend in en blijf op de hoogte van ons meest recente aanbod.

Schrijf u in
Terug naar boven
Schrijf u in
Wij houden u op de hoogte van ons aanbod in België - Spanje - Tenerife
Sluit menu Immo-Home